- Bolig
- 67 m2
- Udlejet
Stuen
3-VÆRELSES LEJLIGHED - CENTRALT - ET "STENKAST" FRA SILKEBORG LANGSØ, LUNDEN & GÅGADEN.
67 m2 moderne, velbeliggende lejlighed i hyggelig, velpasset ejendom med kun 3 boliglejemål.
...Læs mere...
8600 Silkeborg
Vestergade 65 er en smuk 2 etagers rødstensbygning med kviste.
Den er opført 1906 og er løbende moderniseret med respekt for den smukke bygning..
Til ejendommen hører ugeneret gårdanlæg med mulighed for hygge, sol og grill.
Her findes desuden aflåst cykelhus.
I kælderen er der depotrum til hver lejlighed.
Centralt beliggende i smukke omgivelser.
Kun få skridt til stor dagligvarebutik og gågaden med aktive butikker/shopping-muligheder.
Få minutters gang til banegården med hurtig forbindelse til Herning(Ringkøbing) og Skanderborg/Aarhus.
Lige ved Silkeborg smukke natur med Lunden, Kalgårds Vig og Odden, som giver mulighed for outdoor-aktiviteter som gåture, løb, cykling og sejlads.
Foruden egen parkeringsplads i ejendommens gård er der gode parkeringsmuligheder lige udenfor ejendommen.(P-kort kan købes på Silkeborg Kommune).
Byggesag nr. 44/1912.
Herningvej 65(senere Vestergade 65)
Maskinsmed Jacobsen får godkendt tegninger 1/5 1912.
Byggesag nr. 45/1919
Herningvej 65(senere Vetergade 65)
Ny byggesag ved maskinarbejder Petersen.
Kilde: Silkeborg Kommunes byggesagsarkiv.
3-VÆRELSES LEJLIGHED - CENTRALT - ET "STENKAST" FRA SILKEBORG LANGSØ, LUNDEN & GÅGADEN.
67 m2 moderne, velbeliggende lejlighed i hyggelig, velpasset ejendom med kun 3 boliglejemål.
...2-VÆRELSES LEJLIGHED - CENTRALT - ET "STENKAST" FRA LUNDEN, SILKEBORG LANGSØ OG GÅGADEN.
67 m2 moderne, velbeliggende lejlighed i hyggelig, velpasset ejendom med kun 3 boliglejemål.
...2-VÆRELSES TAG-LEJLIGHED - UDSIGT TIL SILKEBORG LANGSØ - CENTRALT.
49 m2 intim og hyggelig kvist-lejlighed med skråvægge og kviste beliggende i velpasset ejendom me...
Læs mere...
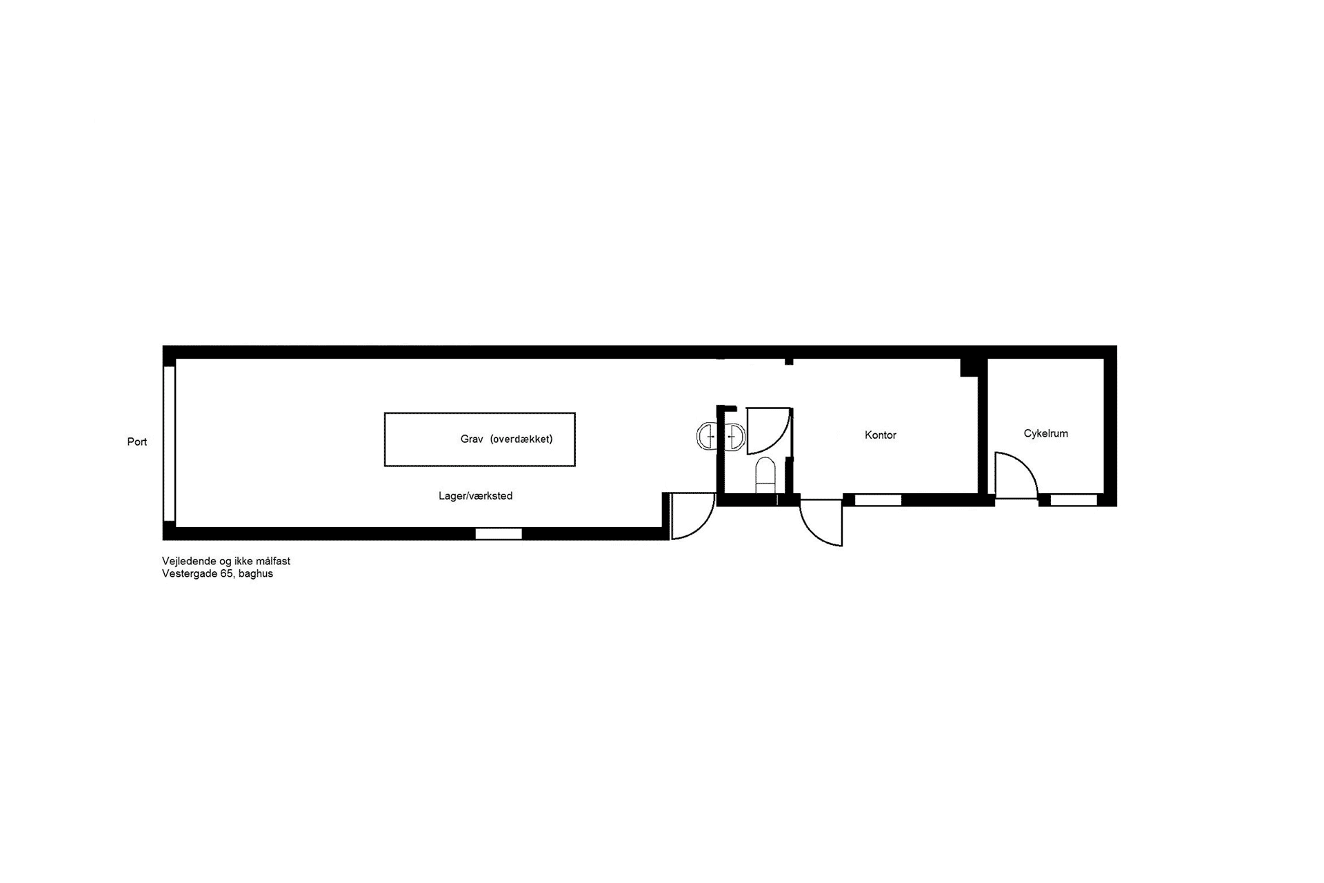
50 M2 LAGER/GARAGE - GÅRDEN - VESTERGADE 65.
Totalrenoveret – isoleret og indrettet med kontor/butik, mellemgang, toilet samt lager med automa...
Læs mere...
P 1 - Parkeringsplads på ejendommen.
P-plads beliggende til venstre i ejendommens gård.
P 2 - Parkeringsplads på ejendommen.
P-plads beliggende som nr. 2 til venstre i ejendommens gård.
P 3 - Parkeringsplads på ejendommen.
P-plads beliggende som nr. 3 til venstre i ejendommens gård.
Dette website benytter cookies. Læs mere. Ok, forstået.