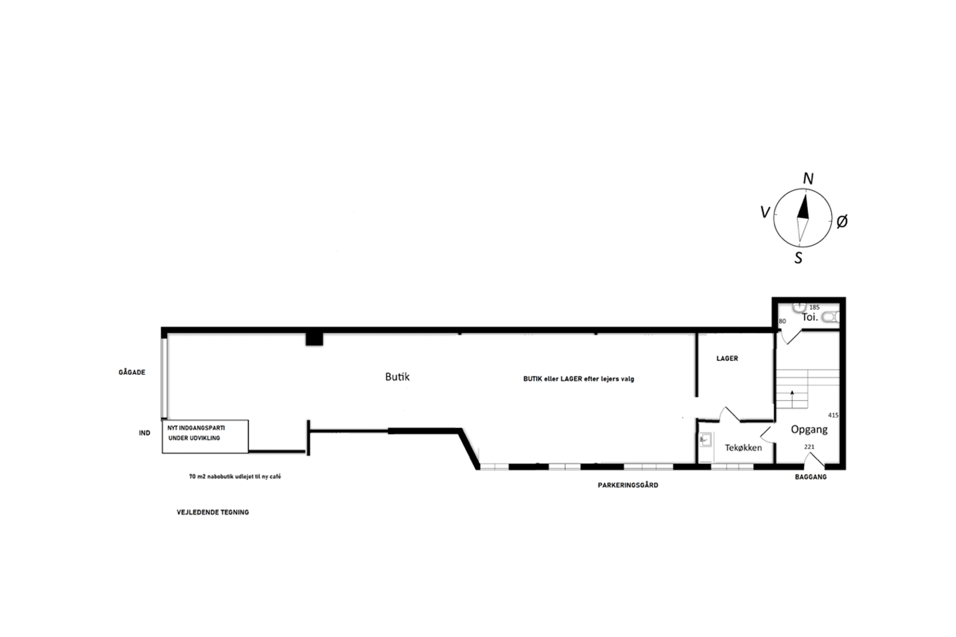
- Butik
- 58 m2
- Udlejet
Stuen th
LILLE GÅGADEBUTIK - CENTRALT PÅ SØNDERGADE.
Helt centralt beliggende på bedste del af Søndergade(gågaden) – kun et stenkast fra Torvet ligger...
Læs mere...
Søndergade 11 består af forhuset mod Søndergade, som er bygget sammen med en sidebygning.
Desuden selvstændig garagebygning som sammen med sidebygningen ligger ud til parkeringsgård.
Forhuset er en smuk 2 1/2 etagers bygning med nyrenoveret sadeltag belagt med pap. Kvistene er beklædt med zink.
Den nyrenoverede facade har gennemgående etagebånd, pudsede og indfarvet i svag, rød farve.
Etagebåndene er adskilt af hvide gesimser, som danner kontrast til etagebåndene.
Forhus og sidebygning er opført 1845 og er løbende moderniseret med respekt for den smukke, charmerende bygning og bygningens historie.
Garagebygningen er opført 1959 og på taget er anlagt fælles solterrasse for ejendommens beboere. Foruden bygningens 3 garager er der indrettet moderne vaskeri, aflåst cykelparkering samt rum til renovationsbeholdere.
Spændende gårdanlæg med indkørsel fra Fredensgade og FØTEX-parkeringsgård.
Gården har smukke, toppede brosten, som stammer fra ejendommens oprindelse, hvor der i sidebygningen bl.a. var indrettet med hestestald.
Søndergade 11 ligger på den bedste del af gågaden - kun et stenkast fra byens nyanlagt torv med stor underjordisk parkeringskælder.
Direkte på gågaden med aktive butikker/shopping-muligheder,
Få minutters gang til byens charmerende "latiner-kvarter" med café-miljø, speciel-butikker og den nyanlagte Bindslevs Plads mellem byens kultur-institutioner - som Silkeborg Handelsskole - Teknisk Skole - Th. Langs Skole - Medborgerhuset - Silkeborg Bibliotek med den nye Campus-bygning
10 minutters gang til banegården med hurtig forbindelse til Herning(Ringkøbing) og Skanderborg/Aarhus.
Tæt på Silkeborg smukke natur med havnemiljøet, Indelukket, Remstrup å og Silkeborg Skovene med mulighed for outdoor-aktiviteter som gåture, løb, cykling og sejlads.
Området:
Søndergade er i dag gågade, som traditionelt går fra torvet og mod syd til Søndre Torv.
På gamle bykort fra 1876, 1880, 1902 og 1947 ses Søndergade.



Bygningen:
Ejendommen har en lang historie og på kommunens byggesagsarkiv findes et brev fra Justitsministeriet - dateret 1887 - angående tilladelse til at dække et åbent skur med tagpap m.v. for en købmand A. Kofoed, som ejede ejendommen fra 1873-1908.
Købmand Kofoed søgte 1904 om tilladelse til opførelse af staldbygning.
Foruden stald indeholdt bygningen karlekammer, vognport, brændeskur og vaskerum.
I tagetagen blev indrettet tørreloft, brændeloft og oplagsloft.

Gadeparti ca 1910. Ejendommen ses til højre ved gående mand.
1920 søgte tandlæge Valdemar Johansen om at ændre sidebygningen fra stald til kontor, lager og sukkerkogeri med butiksfacade mod Fredensgade.
På det gamle matrikelkort kan man se, at ejendommen dengang gik helt ud til Fredensgade og bygningen lå derfor på den nuværende parkeringsplads tilhørende Føtex.
(Matrikelkort er bilagt)
Den nuværende, smukke bygning blev tegninger af arkitekt A. K. P. Kristjansen og i 1908 opført som købmandsgård for købmand Martin Hendriksen, som ejede ejendommen i 10 år.












Købmanden etablerede en port fra Søndergade til gården. Porten blev senere er lukket og indrettet til mindre butik.
Foruden købmandsbutikken indrettede købmand Hendriksen sig selv en 7 værelses herskabslejlighed på 1. sal over butikken med 3 stuer, 3 såkaldte dagligværelser, soveværelse samt moderne badeværelse med wc.
Desuden køkken med tilhørende spisekammer samt et kontor til købmanden.
Købmanden opførte samtidigt et 2 etagers sidehus i den nordlige del af gården, som blev indrettet til 4 beboelseslejligheder med fælles toilet på gangen.
1941 ændrede den daværende ejer, Aabentoft-Jensen, tagetagen på forhuset fra 4 værelser, pulterrum og tørreloft til en beboelseslejlighed og der byggedes samtidigt kviste til begge sider af taget.

Schous Sæbehus: reoler og diske fyldt med varer.
1946 lejede "Schous Sæbehus" det nordlige butikslokale i ejendommen.
Schous Sæbehus var dengang en landsdækkende kæde med salg af sæbe og produkter til personlig pleje. Senere blev udvalget udvidet med smykker, trikotage, håndtasker, legetøj og papirvarer.
1927 var der 846 filialer fordelt over hele landet. Her i Silkeborg var der 3 butikker - foruden denne på Søndergade 2 på Vestergade - henholdsvis i nr. 11 og nr. 37.
1952 lukkede E. Aabentoft-Jensen porten fra Søndergade og åbnede adgang til Fredensgade.
1974 var butikken på Søndergade den sidste i byen, der benyttede navnet "Schou" og på samme tidspunkt trådte moderselskabet i likvidation og navnet forsvandt helt.
Der har været mange forskellige butikker på ejendommen - såsom:
Købmænd(Kofoed & Hendriksen), trikotage(Emile Krogh), fiskehandler(Aabentoft-Jensen), blomsterhandel, varehus(Schous Sæbehus), tobakshandler(Jørgen Petersen), modetøj (Lise D), skobutik (Havana Shoes), Wunderwear, ToGo-bixen, og senest Art By Me samt smykkebutik (Smykkeshoppen) og senest Guldsmed (Guldhuset).
Kendte ejerforhold.
1852-1854 Hans Nielsen, tømmerhandler.
1854-1857 B.S.E. Møller, skolelærer.
1857-1873 J.C. Eskildsen, købmand, brænderiejer, avlsbruger, bankdirektør.
1873-1908 A. Kofoed, købmand.
1908-1918 Martin Henriksen, købmand.
1918-1958 Valdemar Johansen, tandlæge
1958-1990 E. Aabentoft Jensen, blomsterhandler, tobakshandler, fiskehandler
1990-2012 Lise & Vagn Dueholm, modetøj (Lise D)
2012-2015 Torben Larsen, ejendomsmægler
2015- Torben Larsen Ejendomme Holding ApS, ejendomsselskab
Kilde: Lokalhistorisk Arkiv samt Silkeborg Kommunes byggesagsarkiv.
1845 Iflg. BBR. Opførelse af bl.a. et forhus på grunden (Kan ikke være korrekt)
1887 Iflg. brev fra Justitsmin. ang. tilladelse til at dække et åbent skur med tagpap m.v.
(Tegningsmateriale på Lokalhistorisk) for købmand A. Kofoed. (Nedrevet.)
1904 Iflg. byggeanmeldelse. Opførelse af staldbygning for samme. (Nedrevet.)
1908 Ny- eller ombygn. af forhuset til butiks- og beboelsesejendom i 2 etager, ’A’ på
byggekort.
1908 Opførelse af sidehus i 2 etager med 4 lejligheder. ’B ’ på byggekort.
1908 Tilbygning af vaske- og staldbygning i forlængelse af sidehus på den senere
frastykkede grund, Fredensgade 14c på byggekort.
1920 og 1922. Ombygning af lagerrum m.v. på den senere frastykkede grund mod
Fredensgade ’D’ på byggekort,
1952 Tandlæge Valdemar Johansen. (Nedrevet.)
1941 Tilbygning omfattende 7-fags kvist til forhuset i forbindelse med indretning af
taglejlighed for blomsterhandler E. Aabentoft Jensen.
1952 Ombygning og udvidelse af butik mod gård, bl.a. med inddragelse af portgennemkørsel.
’F’ på byggekort
1952 Facadeombygning for tobakshandler E. Aabentoft Jensen
1952-58 Fredensgade 14 frastykkes fra matr.nr. 11 som nr. 11b., og det eksisterende byggeri
nedrives efterhånden for samme.
1958 Opførelse af garageanlæg i skel mod nr. 13. (’D’ på byggekort.)
1959 Ombygning af butik inkl. facadeombygning for Schous Fabrikker A/S.
1972 Ombygning af butik inkl. facadeombygning for Schous Sæbehus.
1972-73 Baldakin på butiksfacade for fiskehandler Svend Aage Aabentoft Jensen.
1980 Ombygning af butiksfacade for Svend Aabentoft.
1993 Facaderenovering og opsætning af 4 knækarmsmarkiser på butiksfacaderne for
Lise og Vagn Dueholm Hansen.
LILLE GÅGADEBUTIK - CENTRALT PÅ SØNDERGADE.
Helt centralt beliggende på bedste del af Søndergade(gågaden) – kun et stenkast fra Torvet ligger...
Læs mere...
2-VÆRELSES LEJLIGHED I ”BYENS HJERTE”.
Spændende og roligt beliggende lejlighed med lys og åben planløsning.
...
Læs mere...
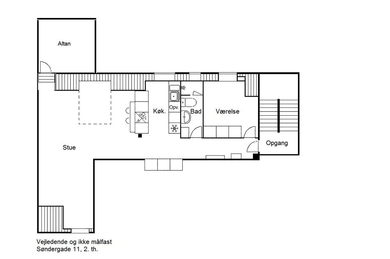
2-VÆRELSES LEJLIGHED I ”BYENS HJERTE” - VED GÅGADEN
Vil du bo helt centralt ved gågaden med dens aktive butikker og shopping-muligheder samt kun et s...
Læs mere...
2-VÆRELSES LEJLIGHED I ”BYENS HJERTE” - VED GÅGADEN
Vil du bo helt centralt ved gågaden med dens aktive butikker og shopping-muligheder samt kun et s...
Læs mere...
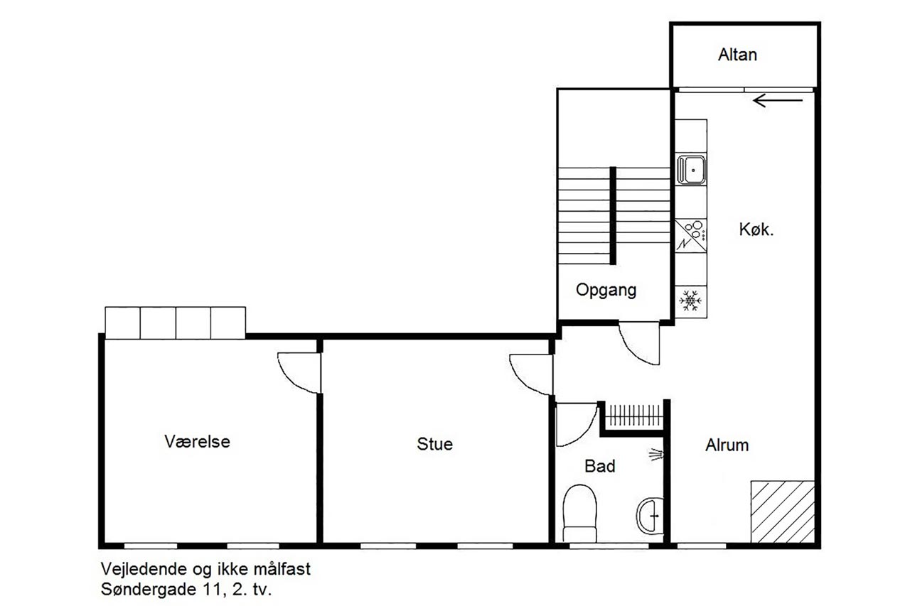
2-VÆRELSES LEJLIGHED I ”BYENS HJERTE” – UDSIGT TIL GÅGADEN.
Vil du bo helt centralt med kig til gågaden med dens aktive butikker og shopping-muligheder samt ...
Læs mere...
2-VÆRELSES SUPER-LEJLIGHED I ”BYENS HJERTE” MOD GÅGADEN.
Vil du bo helt centralt på gågaden med dens aktive butikker og shopping-muligheder samt kun et st...
Læs mere...
3-VÆRELSES LEJLIGHED I ”BYENS HJERTE” VED GÅGADEN – LILLE ALTAN.
Vil du bo helt centralt ved gågaden med dens aktive butikker og shopping-muligheder samt kun et s...
Læs mere...
2-VÆRELSES TAG-LEJLIGHED I ”BYENS HJERTE” - GÅGADEN – ALTAN.
Vil du bo helt centralt med kig til gågaden med dens aktive butikker og shopping-muligheder samt ...
Læs mere...
2-VÆRELSES LIEBHAVER-LEJLIGHED I ”BYENS HJERTE”TIL GÅGADEN.
Vil du bo helt centralt på gågaden med dens aktive butikker og shopping-muligheder samt kun et st...
Læs mere...
P1 - Parkeringsplads placeret TV mod bagdør til forhusets opgang.
Parkeringsgården overvåges af eksterne parkeringsvagter.
Bilen forsynes med synligt P-kort...
Læs mere...
P2 - Parkeringsplads placeret MF mod bagdør til forhusets opgang.
Parkeringsgården overvåges af eksterne parkeringsvagter.
Bilen forsynes med synligt P-kort...
Læs mere...
P3 - Parkeringsplads placeret TH mod bagdør til forhusets opgang.
Parkeringsgården overvåges af eksterne parkeringsvagter.
Bilen forsynes med synligt P-kort...
Læs mere...
P4 - Parkeringsplads placeret TV langs sidebygning.
Parkeringsgården overvåges af eksterne parkeringsvagter.
Bilen forsynes med synligt P-kort...
Læs mere...
P5 - Parkeringsplads placeret TH langs sidebygning.
Parkeringsgården overvåges af eksterne parkeringsvagter.
Bilen forsynes med synligt P-kort...
Læs mere...
P6 - Parkeringsplads placeret nr. 2 fra indkørselen fra Fredensgade - langs mur.
Parkeringsgården overvåges af eksterne parkeringsvagter.
Bilen forsynes med synligt P-kort...
Læs mere...
P7 - Parkeringsplads placeret først i gård TH - langs mur.
Parkeringsgården overvåges af eksterne parkeringsvagter.
Bilen forsynes med synligt P-kort...
Læs mere...
G8 - Garage TV mod indkørsel til gården.
Parkeringsgården overvåges af eksterne parkeringsvagter.
G10 - Garage TH mod vaskehus.
Parkeringsgården overvåges af eksterne parkeringsvagter.
VELBELIGGENDE GÅGADEBUTIK – 120 M2 – CENTRALT PÅ SØNDERGADE
Butikken ligger helt centralt placeret på bedste del af Søndergade (gågaden) – kun et stenkast fr...
Læs mere...
Dette website benytter cookies. Læs mere. Ok, forstået.