- Bolig
- 74 m2
- Udlejet
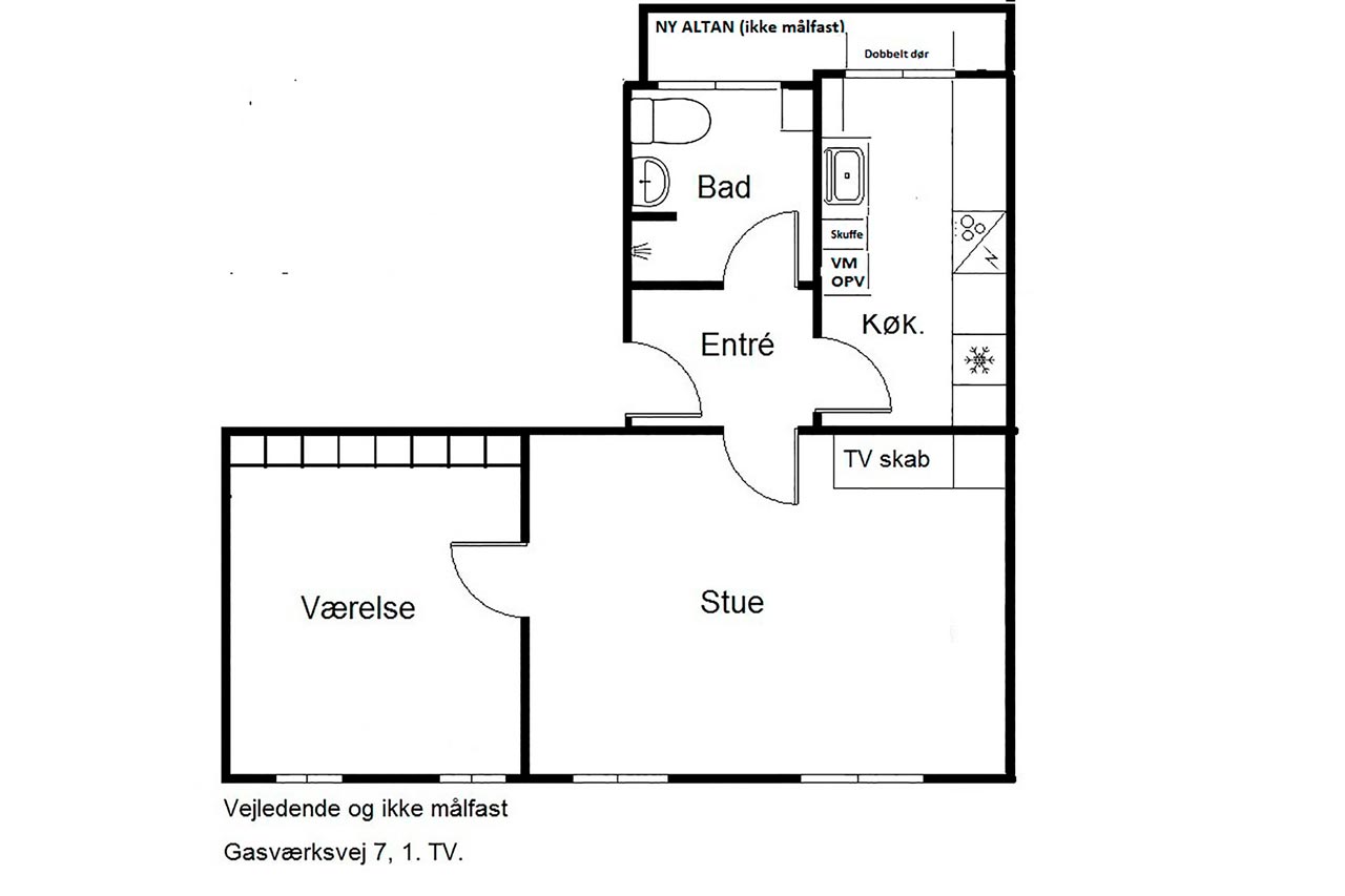
1. sal tv.
74 m2 SUPER 2´er – VED VESTERBRO TORV – 6 m2 STOR ALTAN
En af de bedste samt centrale beliggenheder i København med hyggeligt restaurations- og café-milj...
Læs mere...
Gasværksvej 7 består af 6 etagers ejendom med fuld kælder.
Ejendommen er opført 1872 og er løbende renoveret med respekt for ejendommens arkitektur.
Ejendommen er en meget præsentabel, hotellignende indgang med flot hall.
Der er adgang til stort, fælles, grønt gårdmiljø.
Fjernvarme
Termoruder.
Cykelkælder.
Depotrum.
Dørtelefon.
Energimærke C.
Gasværksvej 7 på Vesterbro er en af de bedste og centrale beliggenheder i København med hyggelige caféer og restauranter.
Få minutters gang til Metroen, Hovedbanegården, Tivoli, Rådhuspladsen med Strøget.
74 m2 SUPER 2´er – VED VESTERBRO TORV – 6 m2 STOR ALTAN
En af de bedste samt centrale beliggenheder i København med hyggeligt restaurations- og café-milj...
Læs mere...
Dette website benytter cookies. Læs mere. Ok, forstået.